Your dashboard services.
Register to access all tools.

Maszt odgromowy do poddachowego montażu przewodu HVI

Do montażu nasadowego na wsporniku montażowym na krokiew.Przewód HVI jest ułożony wewnątrz rury wsporczej, co daje atrakcyjny efekt wizualny. Przewód HVI jest prowadzony przez rurę stojakową wspornika montażowego na krokiew i układany w obszarze kontrłat / łat dachowych.Zalety:
  • Montaż poddachowy – niewidoczny dla oka
  • Montaż nasadowy z tylko jedną widoczną rurą
  • Brak naprężeń mechanicznych np. spowodowanych obciążeniem śniegiem
Minimalna długość do zamówienia wynosi 6 m. Długość przewodu należy określić przy składaniu zamówienia (co 0,5 m).Artykuł jest produkowany na zamówienie (konfekcjonowanie długości przewodu), dlatego w tym przypadku nie przysługuje prawo zwrotu.

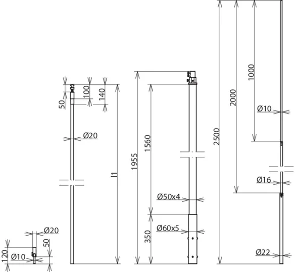
Przewód HVI w rurze wsporczej z iglicą odgromową

1 Produkt

Nr kat. 819247 HVI 20 M L6M SR1955 FS2500 DSH GFK AL

GTIN / EAN 4013364260900, Nr taryfy celnej (EU): 85389099, Waga brutto: 7.10 kg, Jednostka opakowaniowa: 1.00 szt.


Rysunki

Informacje dodatkowe

Maszt odgromowy do poddachowego montażu przewodu HVI
Maszt odgromowy z przewodem HVI i iglicą odgromową do
poddachowego montażu przewodu i montażu nasadowego na wsporniku montażowym na krokiew
Przewód HVI jest prowadzony przez rurę stojakową wspornika montażowego na krokiew i
układany w obszarze kontrłat / łat dachowych.
Rury wsporcze są zwymiarowane zgodnie
z Eurokodem 1 (DIN EN 1991-1-4 + DIN EN 1991-1-4/NA).
DEHNcon-H, przewód HVI wewnątrz rury wsporczej, ze specjalną
końcówką przyłączeniową wewnątrz i iglicą odgromową Ø22/16/10 mm, długość 2500 mm.
Materiał rury wsporczej: GRP / aluminium
Długość rury wsporczej: 1955 mm
Kolor przewodu: czarny ●
Materiał przewodu: Cu
Równoważny odstęp separujący s (w powietrzu): ≤ 75 cm
Minimalna długość do zamówienia: 6 m
Maksymalne obciążenie wiatrem: 140 km/h
Odniesienie do norm: DIN IEC/TS 62561-8 (VDE V 0185-561-8)

Producent: DEHN
Typ: HVI 20 M L6M SR1955 FS2500 DSH GFK AL
Nr kat.: 819247
lub podobny.

Certyfikaty

 

Dane techniczne

Materiał rury wsporczej GRP / aluminium
Długość rury wsporczej 1955 mm
Długość iglicy odgromowej 2500 mm
Średnica zewnętrzna TWS Ø 50 mm
Średnica przewodu Ø 20 mm
Kolor przewodu czarny ●
Materiał przewodu Cu
Równoważny odstęp separujący s (w powietrzu) ≤ 75 cm
Minimalna długość do zamówienia 6 m
Maksymalne obciążenie wiatrem 140 km/h
Odniesienie do norm DIN IEC/TS 62561-8 (VDE V 0185-561-8)

Produkt 819247 został dodany do notatnika.

Do koszyka dodano produkt 819247.


Powrót na górę